- Тип: временна изложба (академичен проект)
- Година: 2014
- Институция: PAC Milano
- Локация: Милано, Италия
- Тема: съвременно изкуство
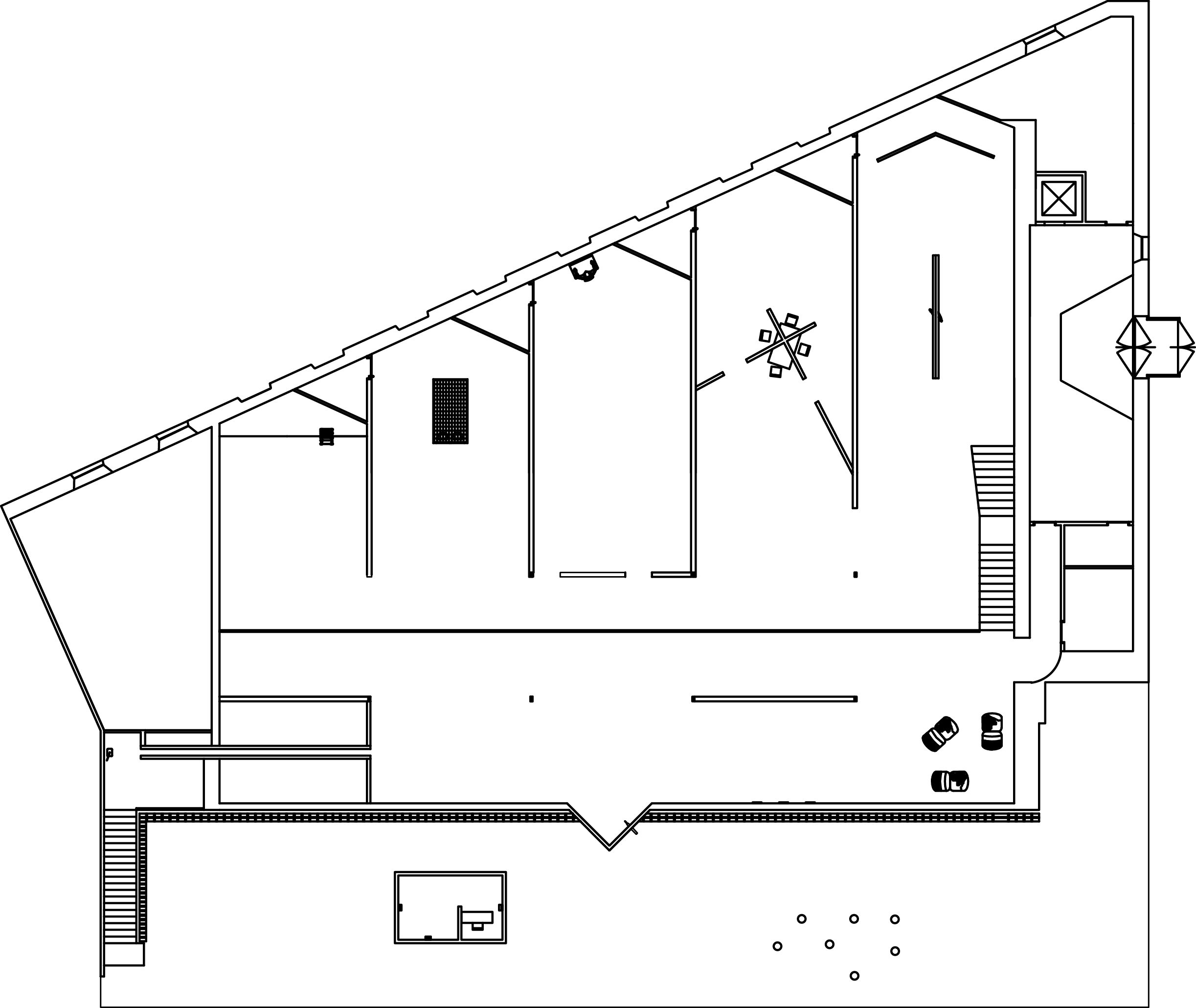
Проектът е реализран по време на курса по Изложбен дизайн в Политехническия университет в Милано. Практическата задача в курса е да се разработи концепция за временна изложба с произведения на изкуството в пространствата на Павилиона за съвременно изкуство в Милано. Заданието предполага цялостен подход към проекта, включващ проучване, избор на заглавие, куриране, селекция на артисти, разположение на творбите в пространството и решения за тяхното презентиране, както и разработка на визуална идентичност и брандинг материали (плакат, каталог, сувенири).
Заглавието на разработената изложба е „Отчуждени пространства“ и представя творби на италиански и чуждестранни артисти, които разглеждат темите за самотата и тенденцията за дистанциране между хроата в съвременния свят.
ВИЗУАЛИЗАЦИИ: @Мартина Денева











